Modular Framing Systems sell a 4 inch by 2 inch aluminum C-Channel (Part# PB150) that is 3/16 inch thick along with a base square so the base frame can be bolted together if welding is not necessary. Configurations vary based on the project design and engineering requirements.

Standard right angle overlapping joints can be arranged as well as extended joints so lifting holes can be cut as necessary. The BS100 base squares have 8mm holes which allow for a 5/16 inch bolt to pass through.


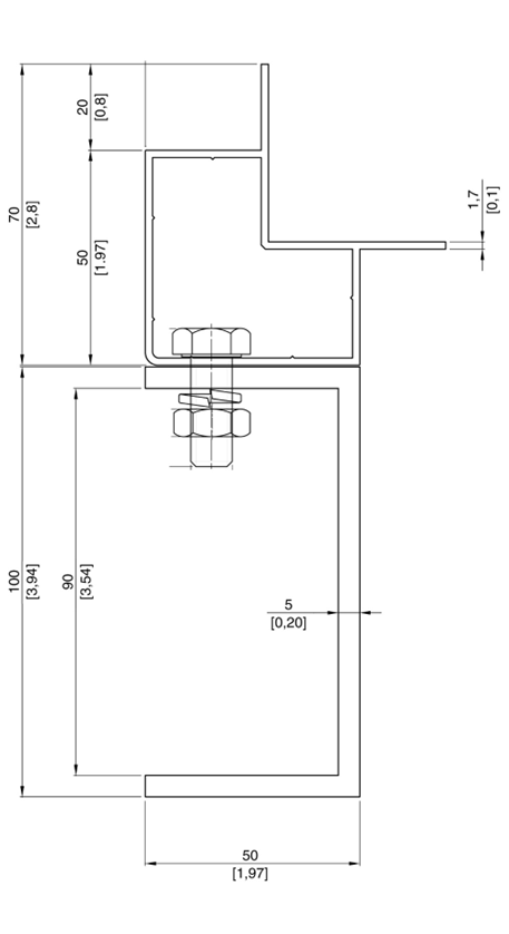
How do I attach the enclosure frame to the base frame?
Bolting the enclosure frame to the base frame is the most common method of attachment. Drill a pilot hole through all surfaces followed by drilling the desired hole size for the diameter of the bolt to be used to secure the enclosure frame to the base frame. Once complete, drill a hole large enough to fit the correct socket through the top surface of the frame to access the bolt head as depicted below. You can place omega intermediate supports over the holes to conceal them as shown in the bottom right picture.





