There are numerous factors that go into properly designing the correct fit between your box and coil. The notes below are for general reference use only and serve only as an example for considerations to take when designing your units.
Single Coil Height
To slide a coil in, you need at least an inch of clearance on top and bottom. To calculate maximum coil casing height, take the extrusion cut length for the height and subtract 6″. This will cover 3″ on the bottom for drain pans, 1″ on the top for flange, and 1″ top/bottom clearance to slide the coil in.

Stacked Coil Height
To slide a coil in, you need at least an inch of clearance on top and bottom. For stacked coils, this means 4″ total. To calculate maximum coil casing height for each, take the extrusion cut length for the height, subtract 10″ and divide by 2. This will cover 3″ on the bottom for drain pans, 1″ on the top for flange, and 1″ top/bottom clearance to slide the coils in.

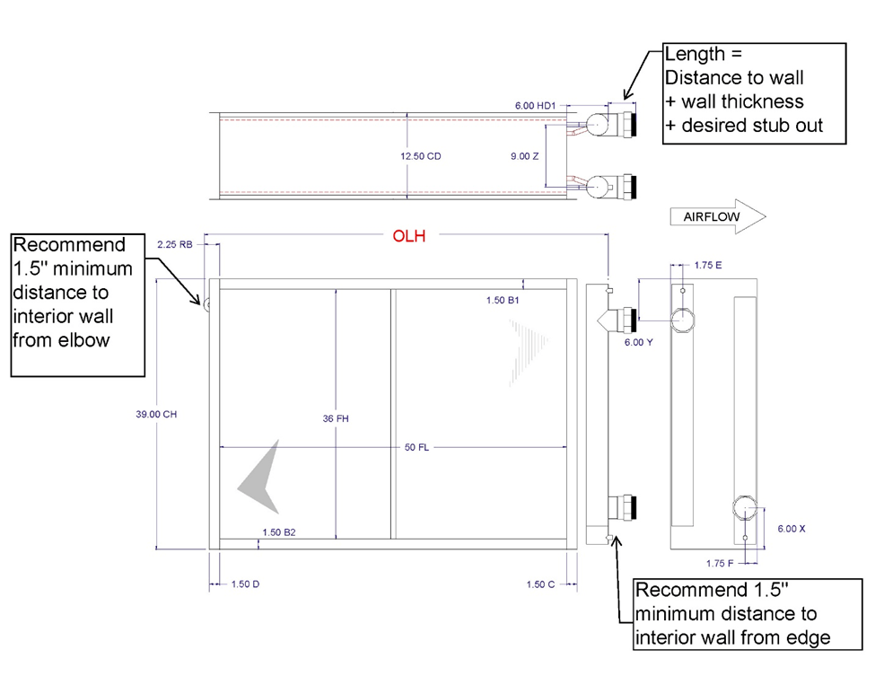
Coil Width
It’s recommended to have at least 1.5in between the outermost edges of the coil to the interior wall of the unit. To calculate the length for connections, add the recommended 1.5in distance to the interior wall with the wall thickness and desired length of protruding pipe for connection.


